Floor 1
Floor 2
Floor 3
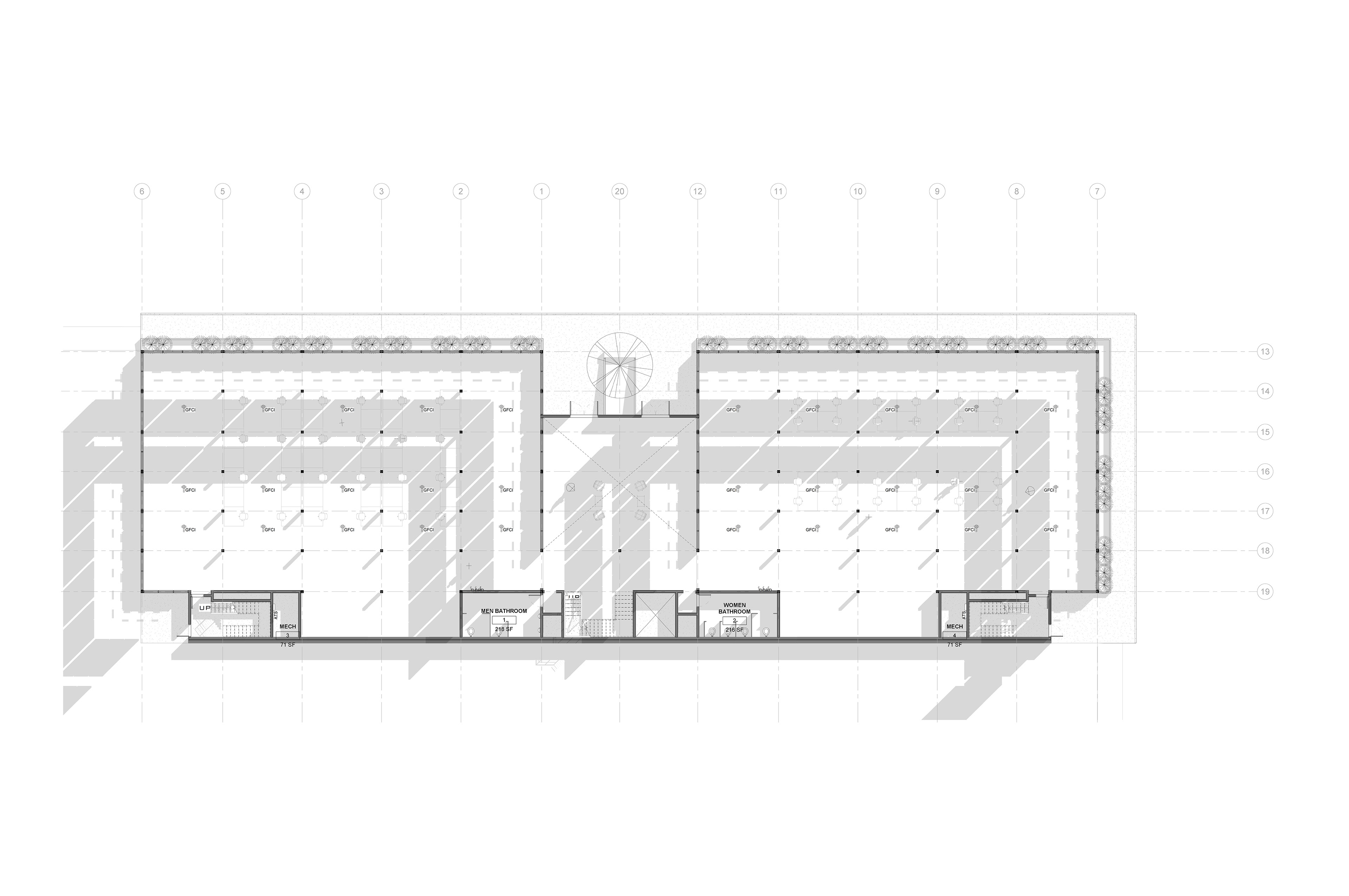
Rooftop
CENTER ATRIUM
3-Story, Multi-use office building Complex with a Front Louvred Façade & Central Atrium space with surrounding curtains walls for ambient lighting during day & night. Aimed at being optimal in any condition with the least energy footprint to sufficiently accommodate occupants and related programs